Trilocale in vendita

Roma, Via La Goletta - Prati Milizie Candia
€ 510.000
3 locali 3 locali
90 Mq 90 Mq
2 bagni 2 bagni

Trilocale in vendita

Roma, Via La Goletta - Prati Milizie Candia

Descrizione annuncio

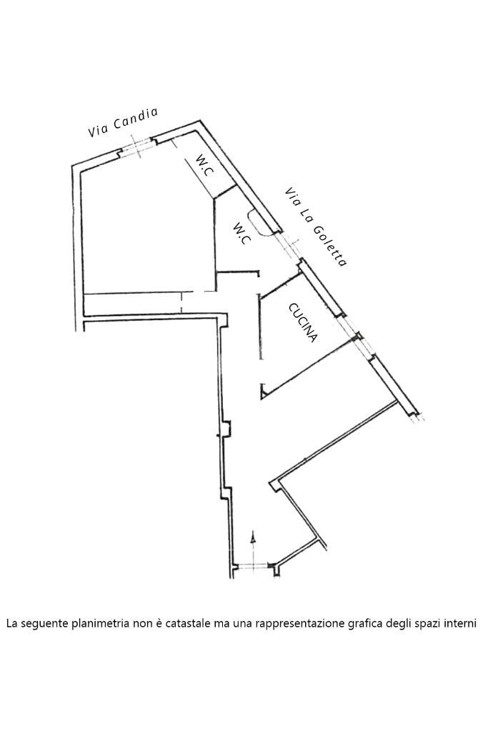
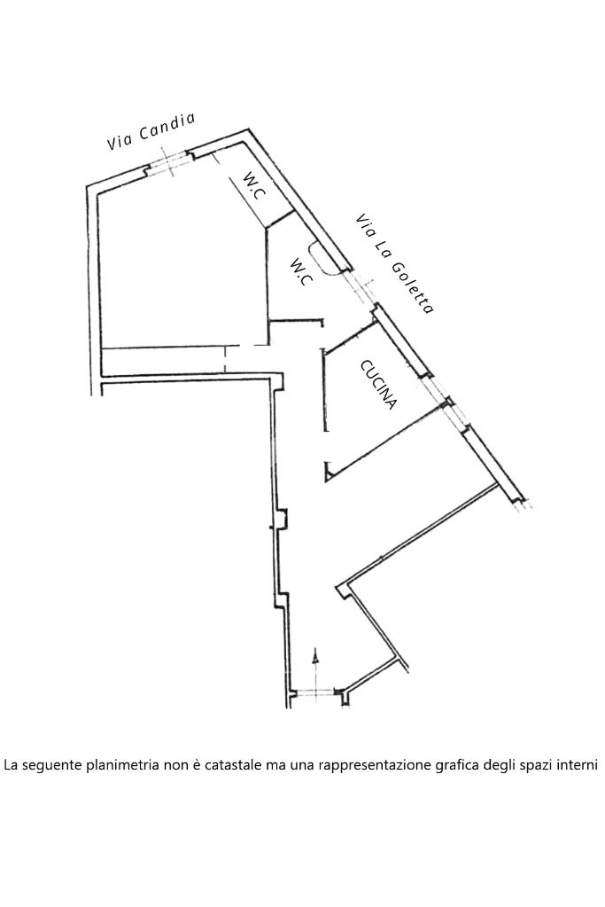
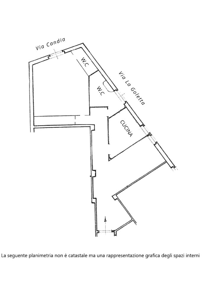
VIA LA GOLETTA - A pochi passi dalla fermata metro Ottaviano, proponiamo in vendita un appartamento al quarto piano di circa 90 mq. La proprietà si apre su un comodo ingresso che conduce a un ampio soggiorno; la cucina abitabile, spaziosa e funzionale, rappresenta un ulteriore punto di forza dell’abitazione. La zona notte è composta da una camera matrimoniale, due servizi di cui uno en-suite e un pratico ripostiglio che offre ulteriore spazio per l’organizzazione della casa. L’appartamento si presenta in buono stato ma offre interessanti possibilità di personalizzazione, consentendo di ridistribuire gli ambienti secondo le proprie esigenze.
Con un intervento di ristrutturazione è infatti possibile ricavare una seconda camera da letto, valorizzando ulteriormente la metratura interna e aumentando la versatilità degli spazi.

La posizione strategica, la luminosità e la vicinanza ai principali servizi, negozi, ristoranti e mezzi pubblici rendono questa soluzione ideale sia per chi cerca una residenza principale nel centro di Roma sia per chi desidera un investimento di valore.


Perché scegliere questo immobile:

- Posizione centrale.

-Spazi versatili e personalizzabili.

-Ideale per investimento.

Classe G Ep>175 Kwh/mq/a.

Per prenotare il tuo appuntamento inviaci un messaggio al 3896368272

Mostra tutto

Nelle vicinanze

Trasporto pubblico Trasporto pubblico
Cipro
Cipro
370 m
Ottaviano
Ottaviano
540 m
Città del Vaticano
Città del Vaticano
810 m
Valle Aurelia
Valle Aurelia
990 m
Risorgimento/S. Pietro
Risorgimento/S. Pietro
580 m
Ricariche auto elettriche Ricariche auto elettriche
Parcheggio Mercato Trionfale - Musei Vaticani
50 m
Eneldrive Risorgimento
430 m
Garage Properzio | EnelX
790 m
Roma Clodio | EnelX
860 m
Rome Cavalieri, A Waldorf Astoria Resort
1,3 Km
Scuole Scuole
Scuola dell'infanzia ed Elementare Adelaide Cairoli
250 m
Liceo Cornelio Tacito
290 m
Scuole
290 m
Giovan Battista Vico
360 m
Scuola Media Ludovico Ariosto
430 m
Farmacia Farmacia
Mannucci
230 m
Farmacia Giulio Cesare
370 m
LaLiFarm
420 m
Ragoni
420 m
Farma Point
430 m
Ospedali Ospedali
Pronto Soccorso Ospedale Oftalmico
240 m
Ospedale Oftalmico
320 m
Casa di Cura Santa Famiglia
1,1 Km
Ospedale Santo Spirito in Sassia
1,2 Km
Pronto Soccorso Ospedale "Santo Spirito in Sassia"
1,2 Km
Supermercati Supermercati
Meta
30 m
IN's mercato
60 m
Todis
150 m
incoop
190 m
Carrefour Express
250 m
Negozi Negozi
Pampling
20 m
OVS
30 m
Oviesse
40 m
Idexè
60 m
Smalto
70 m
Bar Bar
Alexanderplatz
170 m
Fabrica
220 m
Lu Night Bistrò
260 m
Bar
310 m
Beere mangiare e co.
420 m
Ristoranti Ristoranti
Maybu - Margaritas y Burritos
40 m
La Cucaracha
50 m
Il bar sotto al mare
60 m
Il Belli al Trionfale
60 m
Forno Feliziani
120 m
Mostra tutto

Caratteristiche

Rif.:
61127329
Piano:
4 di 6 con ascensore (Piano alto)
Camere da letto:
1
Arredamento:
Assente
Condizionamento:
Autonomo
Ascensore:
Mostra tutto
Prezzo Prezzo
€ 510.000
Rata mutuo Rata mutuo
€ 2.337 / mese
Spese annue Spese annue
€ 786
Proponi il tuo prezzoProponi il tuo prezzo

Classe Energetica

G
G
G
G
G
G
G
G
G
Anno di costruzione:
1900
Riscaldamento:
Centralizzato
Tipo impianto:
A radiatori
Tipo alimentazione:
Altro

Ti interessa visionare l'immobile?

Fissa un appuntamento  Fissa un appuntamento

Richiedi informazioni

* Questi campi sono obbligatori

Calcola il tuo mutuo

Semplice e senza impegno
Anticipo

( % )
Mutuo

( % )

pochi semplici passi

inserisci i tuoi dati
Questionario completato
Grazie per aver richiesto un appuntamento senza impegno con un nostro Consulente del Credito e Assicurativo.

Hai inserito correttamente tutti i dati necessari e a breve riceverai una e-mail con un link da convalidare per inviare i tuoi dati.
Affiliato
Studio Immobiliare Prati Srl
P.zza Del Risorgimento, 2 00192 Roma (RM)

Il nostro staff


  • Gisella Callipari
    Coordinatrice

  • Gabriella Donoso
    Affiliata

  • Sonia De Angelis
    Collaboratrice

  • Claudia Amodio
    Coordinatrice

  • Lorenzo Mariani
    Collaboratore
P.zza Del Risorgimento, 2 00192 Roma (RM)
Zona: Prati- Milizie- Cola di Rienzo- Borgo Pio- Candia
Mostra su mappa
Orari: Dal lunedì al venerdì 09.00 - 20.00 Sabato 09.00 - 19.30
Affiliato
Studio Immobiliare Prati Srl
P.zza Del Risorgimento, 2 00192 Roma (RM)

2025 Tecnocasa Franchising S.p.A. - P. IVA 08365160152 - Via Monte Bianco 60/A 20089 Rozzano (MI). Ogni agenzia ha un proprio titolare ed è autonoma. Privacy policy | Policy utilizzo | Cookie policy