6 locali in vendita

Roma, Via Crescenzio - Prati Cola Di Rienzo
€ 1.590.000
7 locali 7 locali
240 Mq 240 Mq
2 bagni 2 bagni

6 locali in vendita

Roma, Via Crescenzio - Prati Cola Di Rienzo

Descrizione annuncio

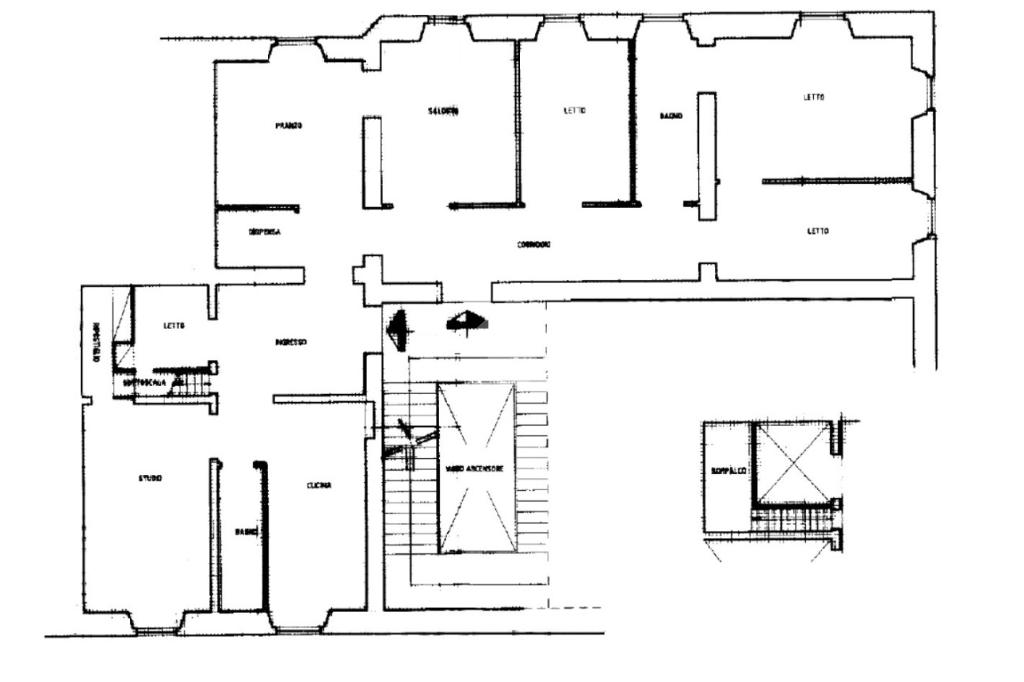
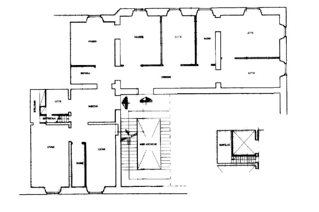
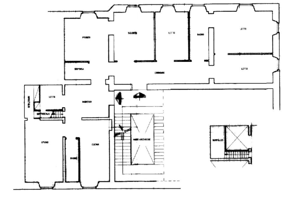
VIA CRESCENZIO - Nel cuore del quartiere Prati, proponiamo la vendita di un appartamento di rappresentanza in Via Crescenzio, una delle strade più esclusive di Roma. Un indirizzo che da sempre racconta il prestigio della Capitale, a pochi passi da San Pietro, dal Vaticano e da Piazza Cavour. Situato al terzo piano di un elegante palazzo d'epoca con servizio di portineria ed ascensore, questo immobile di circa 240 mq incarna l'autentico stile romano: soffitti alti, grandi finestre, ambienti luminosi e proporzioni armoniose che trasmettono immediatamente una sensazione di spazio e raffinatezza. L'appartamento è composto da ingresso, soggiorno, cinque camere, cucina abitabile, due servizi e due ripostigli. L'immobile è caratterizzato da un doppio ingresso che permette di adattare l'abitazione anche a uso professionale o come prestigiosa sede di rappresentanza. L'appartamento è da ristrutturare, ma proprio per questo rappresenta una straordinaria opportunità di valorizzazione: è possibile reinterpretare gli spazi secondo uno stile contemporaneo, mantenendo intatto il fascino d'epoca che solo gli edifici storici di Roma possono offrire. Grazie alla disposizione degli spazi e al doppio ingresso, l'immobile si presta perfettamente sia come residenza esclusiva nel cuore di Roma, sia come sede di rappresentanza o per la realizzazione di due unità abitative indipendenti.

Perché scegliere questo immobile:

- Posizione centrale e di prestigio;

-Spazi versatili e personalizzabili;

-Ideale sia per abitazione che per investimento;

Classe G Ep175 Kwh/mq/a.

Per prenotare il tuo appuntamento inviaci un messaggio al 3896368272

Mostra tutto

Nelle vicinanze

Trasporto pubblico Trasporto pubblico
Ottaviano
Ottaviano
430 m
Lepanto
Lepanto
750 m
Città del Vaticano
Città del Vaticano
990 m
stazione di Roma San Pietro
stazione di Roma San Pietro
1,2 Km
Risorgimento/S. Pietro
Risorgimento/S. Pietro
190 m
Ricariche auto elettriche Ricariche auto elettriche
Garage Properzio | EnelX
100 m
Eneldrive Risorgimento
340 m
Parcheggio Mercato Trionfale - Musei Vaticani
730 m
Eneldrive Cola di Rienzo
750 m
Roma Mazzini | EnelX
1,1 Km
Scuole Scuole
Scuole
150 m
LUMSA
340 m
Berlitz
430 m
Istituto Comprensivo Dante Alighieri
540 m
St. John's University
710 m
Farmacia Farmacia
Farmacia
170 m
Farmacia Germanico
270 m
Farmacia Fabio Massimo
390 m
Farmacia Vaticana
400 m
Farmacia
470 m
Ospedali Ospedali
Casa di Cura Santa Famiglia
490 m
Ospedale Santo Spirito in Sassia
570 m
Pronto Soccorso Ospedale "Santo Spirito in Sassia"
610 m
Pronto Soccorso Ospedale Oftalmico
990 m
Ospedale Bambino Gesù
990 m
Supermercati Supermercati
in Coop
120 m
Pam Local
230 m
Carrefour Express
290 m
Pam Express
310 m
La Esse
350 m
Negozi Negozi
Paul Bianco
80 m
Desigual
80 m
Fellini Lady
80 m
Liu Jo
80 m
Fellini
110 m
Bar Bar
Bar L'ottagono
200 m
Ted
200 m
Cafe' dei Desideri
230 m
Bar delle Grazie
270 m
Enoteca del Frate
320 m
Ristoranti Ristoranti
La Zanzara
60 m
Calabascio
60 m
Taverna Varrone
60 m
Passaguai
60 m
Il Sorpasso
80 m
Mostra tutto

Caratteristiche

Rif.:
61139111
Piano:
3 di 5 con ascensore (Piano medio)
Camere da letto:
5
Arredamento:
Assente
Condizionamento:
Assente
Ascensore:
Mostra tutto
Prezzo Prezzo
€ 1.590.000
Rata mutuo Rata mutuo
€ 7.497 / mese
Spese annue Spese annue
€ 1.800
Proponi il tuo prezzoProponi il tuo prezzo

Classe Energetica

G
G
G
G
G
G
G
G
G
EP globale non rinnovabile:
175.00 kW h/m² anno
EP invernale del fabbricato:
EP estiva del fabbricato:
Anno di costruzione:
1900
Riscaldamento:
Autonomo
Tipo impianto:
A radiatori
Tipo alimentazione:
Altro

Ti interessa visionare l'immobile?

Fissa un appuntamento  Fissa un appuntamento

Richiedi informazioni

Clicca su Leggi per aprire l'informativa
* Questi campi sono obbligatori

Calcola il tuo mutuo

Semplice e senza impegno
Anticipo

( % )
Mutuo

( % )

pochi semplici passi

inserisci i tuoi dati
Questionario completato
Grazie per aver richiesto un appuntamento senza impegno con un nostro Consulente del Credito e Assicurativo.

Hai inserito correttamente tutti i dati necessari e a breve riceverai una e-mail con un link da convalidare per inviare i tuoi dati.
Affiliato
Studio Immobiliare Prati Srl
P.zza Del Risorgimento, 2 00192 Roma (RM)

Il nostro staff


  • Gisella Callipari
    Coordinatrice

  • Gabriella Donoso
    Affiliata

  • Sonia De Angelis
    Collaboratrice

  • Stefano Gloria
    Collaboratore

  • Claudia Amodio
    Coordinatrice
P.zza Del Risorgimento, 2 00192 Roma (RM)
Zona: Prati- Milizie- Cola di Rienzo- Borgo Pio- Candia
Mostra su mappa
Orari: Dal lunedì al venerdì 09.00 - 20.00 Sabato 09.00 - 19.30
Affiliato
Studio Immobiliare Prati Srl
P.zza Del Risorgimento, 2 00192 Roma (RM)

2025 Tecnocasa Franchising S.p.A. - P. IVA 08365160152 - Via Monte Bianco 60/A 20089 Rozzano (MI). Ogni agenzia ha un proprio titolare ed è autonoma. Privacy policy | Policy utilizzo | Cookie policy