Quadrilocale in vendita

Roma, Via dei Gracchi - Prati Cola Di Rienzo
€ 695.000
4 locali 4 locali
115 Mq 115 Mq
1 bagno 1 bagno

Quadrilocale in vendita

Roma, Via dei Gracchi - Prati Cola Di Rienzo

Descrizione annuncio

VIA DEI GRACCHI

-
Indirizzo di prestigio nel cuore di Prati, a pochi passi da Piazza dei Quiriti, Via Cola di Rienzo e dalla Metro Lepanto;

- Ampia metratura con distribuzione estremamente flessibile, ideale per abitazione, investimento o studio professionale;

- Immobile in ottimo stato, pronto per essere personalizzato o messo immediatamente a reddito;

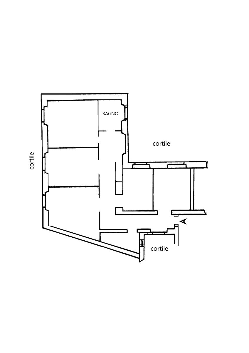
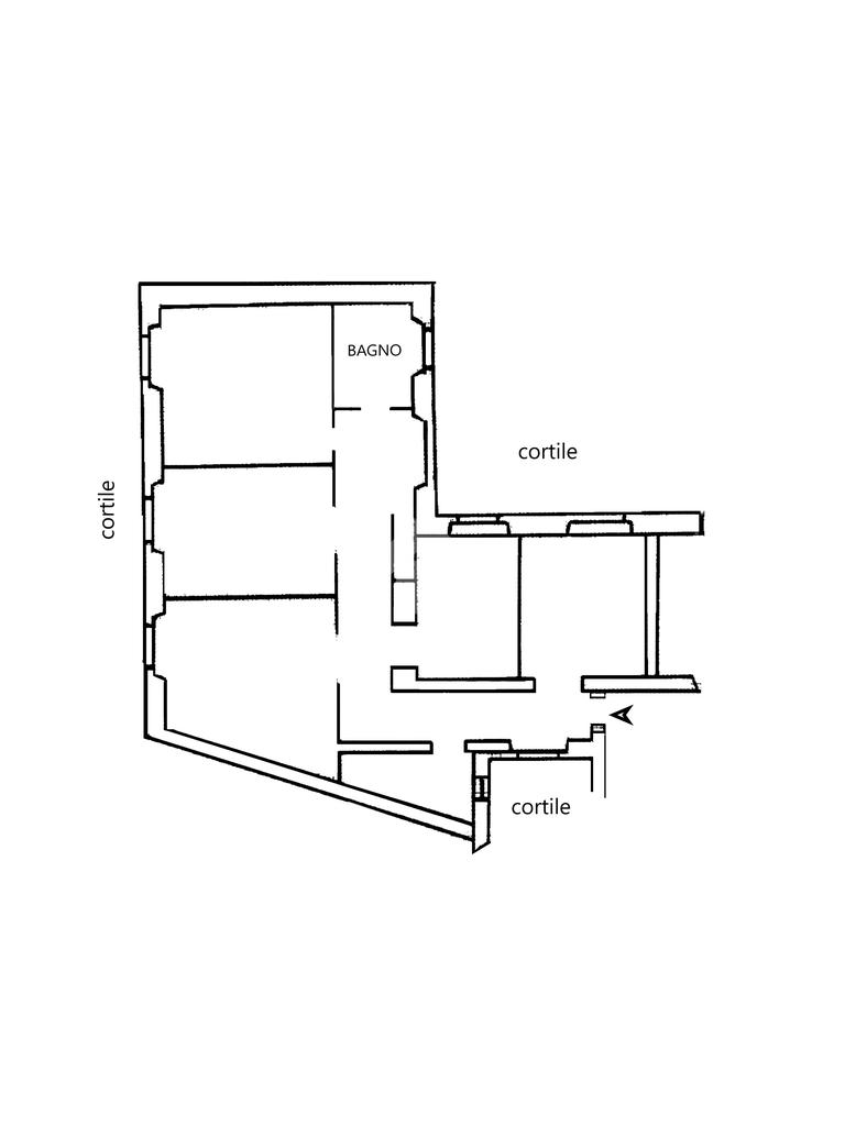
Nel tratto più richiesto di Via dei Gracchi, in stabile signorile dotato di ascensore, proponiamo in vendita un elegante appartamento di 115 mq posto al quarto piano, caratterizzato da ambienti ampi, regolari e facilmente personalizzabili. L’immobile è caratterizzato da una distribuzione razionale e funzionale: ingresso, quattro vani di generosa metratura, cucina, servizio finestrato ed un ampio ripostiglio, elemento sempre più raro e prezioso. L’esposizione interna garantisce un’atmosfera silenziosa e riservata, qualità particolarmente apprezzata sia in ambito residenziale sia professionale. Non a caso l’immobile è stato locato per anni come studio legale, confermandone la perfetta adattabilità ad uso ufficio di rappresentanza. La posizione, tra le più ambite del quartiere Prati, assicura altissima richiesta sul mercato: soluzione ideale come abitazione principale per chi desidera vivere in un contesto elegante e centrale, come investimento per locazioni lunghe o brevi a forte redditività, oppure come studio professionale in zona di grande visibilità e prestigio. L’immobile sarà libero a partire da fine maggio 2026, offrendo la possibilità di pianificare con tranquillità sia un utilizzo diretto sia una strategia d’investimento.

Classe G Ep>175 Kwh/mq/a.

Prenota ora la tua visita al 3896368272.

Mostra tutto

Nelle vicinanze

Trasporto pubblico Trasporto pubblico
Lepanto
Lepanto
290 m
Ottaviano
Ottaviano
620 m
Flaminio
Flaminio
1,0 Km
Città del Vaticano
Città del Vaticano
1,5 Km
Risorgimento/S. Pietro
Risorgimento/S. Pietro
680 m
Ricariche auto elettriche Ricariche auto elettriche
Eneldrive Cola di Rienzo
250 m
Garage Properzio | EnelX
430 m
Roma Piazza del Popolo | EnelX
790 m
Roma Mazzini | EnelX
800 m
Eneldrive Risorgimento
800 m
Scuole Scuole
Lumsa
190 m
St. John's University
190 m
Istituto Comprensivo Dante Alighieri
280 m
Berlitz
360 m
Liceo Classico Terenzio Mamiani
510 m
Farmacia Farmacia
Farmacia Centrale
100 m
Farmacia
110 m
Farmacia
170 m
Farmacia Fabio Massimo
310 m
Farmacia Germanico
610 m
Ospedali Ospedali
Casa di Cura Santa Famiglia
70 m
Ospedale Santo Spirito in Sassia
930 m
Pronto Soccorso Ospedale "Santo Spirito in Sassia"
940 m
Ospedale Bambino Gesù
1,4 Km
Pronto Soccorso Ospedale Oftalmico
1,4 Km
Supermercati Supermercati
Punto
140 m
La Esse
170 m
Pam Express
230 m
Pam Local
360 m
in Coop
540 m
Negozi Negozi
Brandy Melville
90 m
Subdued
90 m
Cliché
130 m
Lacoste
130 m
Doppelgänger
130 m
Bar Bar
Grande Franco
70 m
Caffè Tacito
210 m
Bar Tabacchi Epifani Anita
250 m
Caffè Prati
320 m
Bar
360 m
Ristoranti Ristoranti
La Tavernella
60 m
Miva
70 m
Gourmet
130 m
Tacito
140 m
PataPinsa
140 m
Mostra tutto

Caratteristiche

Rif.:
61180296
Piano:
4 di 6 con ascensore (Piano alto)
Camere da letto:
3
Arredamento:
Assente
Condizionamento:
Autonomo
Ascensore:
Mostra tutto
Prezzo Prezzo
€ 695.000
Rata mutuo Rata mutuo
€ 3.302 / mese
Proponi il tuo prezzoProponi il tuo prezzo

Classe Energetica

G
G
G
G
G
G
G
G
G
EP invernale del fabbricato:
EP estiva del fabbricato:
Anno di costruzione:
1900
Riscaldamento:
Autonomo
Tipo impianto:
Ad aria
Tipo alimentazione:
Altro

Ti interessa visionare l'immobile?

Fissa un appuntamento  Fissa un appuntamento

Richiedi informazioni

Clicca su Leggi per aprire l'informativa
* Questi campi sono obbligatori

Calcola il tuo mutuo

Semplice e senza impegno
Anticipo

( % )
Mutuo

( % )

pochi semplici passi

inserisci i tuoi dati
Questionario completato
Grazie per aver richiesto un appuntamento senza impegno con un nostro Consulente del Credito e Assicurativo.

Hai inserito correttamente tutti i dati necessari e a breve riceverai una e-mail con un link da convalidare per inviare i tuoi dati.
Affiliato
Studio Immobiliare Prati Srl
P.zza Del Risorgimento, 2 00192 Roma (RM)

Il nostro staff


  • Gisella Callipari
    Coordinatrice

  • Gabriella Donoso
    Affiliata

  • Giulia Abatemattei
    Collaboratrice

  • Edoardo Accogli
    Collaboratore

  • Sonia De Angelis
    Collaboratrice

  • Stefano Gloria
    Collaboratore

  • Ludovica Giannone
    Coordinatrice

  • Claudia Amodio
    Coordinatrice
P.zza Del Risorgimento, 2 00192 Roma (RM)
Zona: Prati- Milizie- Cola di Rienzo- Borgo Pio- Candia
Mostra su mappa
Orari: Dal lunedì al venerdì 09.00 - 20.00 Sabato 09.00 - 19.30
Affiliato
Studio Immobiliare Prati Srl
P.zza Del Risorgimento, 2 00192 Roma (RM)

2026 Tecnocasa Franchising S.p.A. - P. IVA 08365160152 - Via Monte Bianco 60/A 20089 Rozzano (MI). Ogni agenzia ha un proprio titolare ed è autonoma. Privacy policy | Policy utilizzo | Cookie policy