Quadrilocale in vendita

Roma, Via Caio Mario - Prati Cola Di Rienzo
€ 645.000
Prezzo aggiornato
4 locali 4 locali
90 Mq 90 Mq
2 bagni 2 bagni

Quadrilocale in vendita

Roma, Via Caio Mario - Prati Cola Di Rienzo

Descrizione annuncio

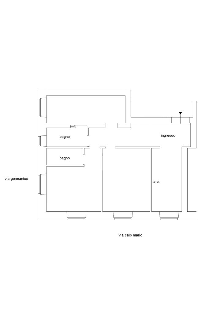
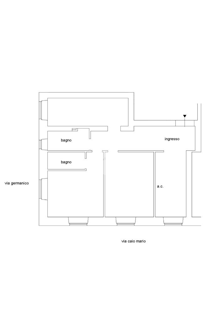
AD. VIA GERMANICO - Nel cuore di Prati, in una delle zone più richieste e solide di Roma, precisamente in via Caio Mario, proponiamo in vendita un appartamento di 90 mq posto all’ultimo piano di uno stabile signorile. Una soluzione rara, che racchiude alcune delle caratteristiche oggi più ricercate sul mercato: piano alto, luminosità straordinaria e affacci aperti. L’immobile si presenta in ottime condizioni interne ed è pronto per essere abitato sin da subito. La posizione all’ultimo piano garantisce privacy, silenzio e una luce naturale che valorizza ogni ambiente durante tutto l’arco della giornata. L’affaccio è ampio e angolare, con esposizione su via Germanico e via Caio Mario: una doppia visuale aperta che dona respiro, profondità e un’immediata sensazione di ariosità agli spazi interni. La distribuzione è funzionale e moderna: ingresso, zona giorno con angolo cottura, tre camere da letto e doppi servizi, di cui uno en suite. Una configurazione estremamente versatile, perfetta per famiglie, professionisti o per chi desidera un immobile facilmente adattabile a diverse esigenze.

I PUNTI DI FORZA DI QUESTA PROPRIETÀ:

Ultimo piano con affaccio ampio e angolare;

Ottime condizioni interne, pronto da vivere;

Distribuzione moderna e super richiesta;

Classe G Ep175 Kwh/mq/a.

Prenota ora la tua visita al 3896368272

Mostra tutto

Nelle vicinanze

Trasporto pubblico Trasporto pubblico
Ottaviano
Ottaviano
270 m
Lepanto
Lepanto
560 m
Città del Vaticano
Città del Vaticano
1,2 Km
Flaminio
Flaminio
1,4 Km
Risorgimento/S. Pietro
Risorgimento/S. Pietro
310 m
Ricariche auto elettriche Ricariche auto elettriche
Garage Properzio | EnelX
150 m
Eneldrive Risorgimento
400 m
Eneldrive Cola di Rienzo
650 m
Parcheggio Mercato Trionfale - Musei Vaticani
710 m
Roma Mazzini | EnelX
910 m
Scuole Scuole
Berlitz
200 m
Scuole
330 m
Scuola Media Statale Dante Alighieri
520 m
Liceo Scientifico Statale Talete
520 m
LUMSA
530 m
Farmacia Farmacia
Farmacia Fabio Massimo
170 m
Farmacia
180 m
Farmacia Germanico
200 m
Farmacia Giulio Cesare
390 m
Farmacia Centrale
460 m
Ospedali Ospedali
Casa di Cura Santa Famiglia
350 m
Ospedale Santo Spirito in Sassia
800 m
Pronto Soccorso Ospedale "Santo Spirito in Sassia"
840 m
Pronto Soccorso Ospedale Oftalmico
990 m
Ospedale Oftalmico
1,1 Km
Supermercati Supermercati
Pam Express
180 m
La Esse
260 m
Pam Local
300 m
in Coop
340 m
Minimarket
380 m
Negozi Negozi
Panificio Lintozzi
40 m
Rechicle
50 m
Outlet Multibrand Donna
80 m
Simply
110 m
Nuvolari
120 m
Bar Bar
Enoteca del Frate
120 m
Bar
230 m
Ted
280 m
Bar L'ottagono
310 m
Bar Tabacchi Epifani Anita
380 m
Ristoranti Ristoranti
Pizzeria L'Archetto
40 m
Ai Balestrari In Prati
60 m
Neighborhood
90 m
Flower Burger Roma
100 m
Zi Gaetana
120 m
Mostra tutto

Caratteristiche

Rif.:
61180985
Piano:
5 di 5 con ascensore (Piano alto)
Camere da letto:
3
Arredamento:
Parziale
Condizionamento:
Autonomo
Ascensore:
Mostra tutto
Prezzo Prezzo
€ 645.000
Rata mutuo Rata mutuo
€ 3.041 / mese
Spese annue Spese annue
€ 1.600
Proponi il tuo prezzoProponi il tuo prezzo

Altre caratteristiche

Descrizione dei locali
Bagno Con Finestra

Classe Energetica

G
G
G
G
G
G
G
G
G
EP invernale del fabbricato:
EP estiva del fabbricato:
Anno di costruzione:
1900
Riscaldamento:
Autonomo
Tipo impianto:
Ad aria
Tipo alimentazione:
Altro

Prezzo ridotto di €1 (3%%)

Ti interessa visionare l'immobile?

Fissa un appuntamento  Fissa un appuntamento

Richiedi informazioni

Clicca su Leggi per aprire l'informativa
* Questi campi sono obbligatori

Calcola il tuo mutuo

Semplice e senza impegno
Anticipo

( % )
Mutuo

( % )

pochi semplici passi

inserisci i tuoi dati
Questionario completato
Grazie per aver richiesto un appuntamento senza impegno con un nostro Consulente del Credito e Assicurativo.

Hai inserito correttamente tutti i dati necessari e a breve riceverai una e-mail con un link da convalidare per inviare i tuoi dati.
Affiliato
Studio Immobiliare Prati Srl
P.zza Del Risorgimento, 2 00192 Roma (RM)

Il nostro staff


  • Gisella Callipari
    Coordinatrice

  • Gabriella Donoso
    Affiliata

  • Edoardo Accogli
    Collaboratore

  • Sonia De Angelis
    Collaboratrice

  • Stefano Gloria
    Collaboratore

  • Ludovica Giannone
    Coordinatrice

  • Claudia Amodio
    Coordinatrice
P.zza Del Risorgimento, 2 00192 Roma (RM)
Zona: Prati- Milizie- Cola di Rienzo- Borgo Pio- Candia
Mostra su mappa
Orari: Dal lunedì al venerdì 09.00 - 20.00 Sabato 09.00 - 19.30
Affiliato
Studio Immobiliare Prati Srl
P.zza Del Risorgimento, 2 00192 Roma (RM)

2026 Tecnocasa Franchising S.p.A. - P. IVA 08365160152 - Via Monte Bianco 60/A 20089 Rozzano (MI). Ogni agenzia ha un proprio titolare ed è autonoma. Privacy policy | Policy utilizzo | Cookie policy