Trilocale in vendita

Roma, Ad Crescenzio - Prati Milizie Candia
€ 710.000
3 locali 3 locali
85 Mq 85 Mq
3 bagni 3 bagni

Trilocale in vendita

Roma, Ad Crescenzio - Prati Milizie Candia

Descrizione annuncio

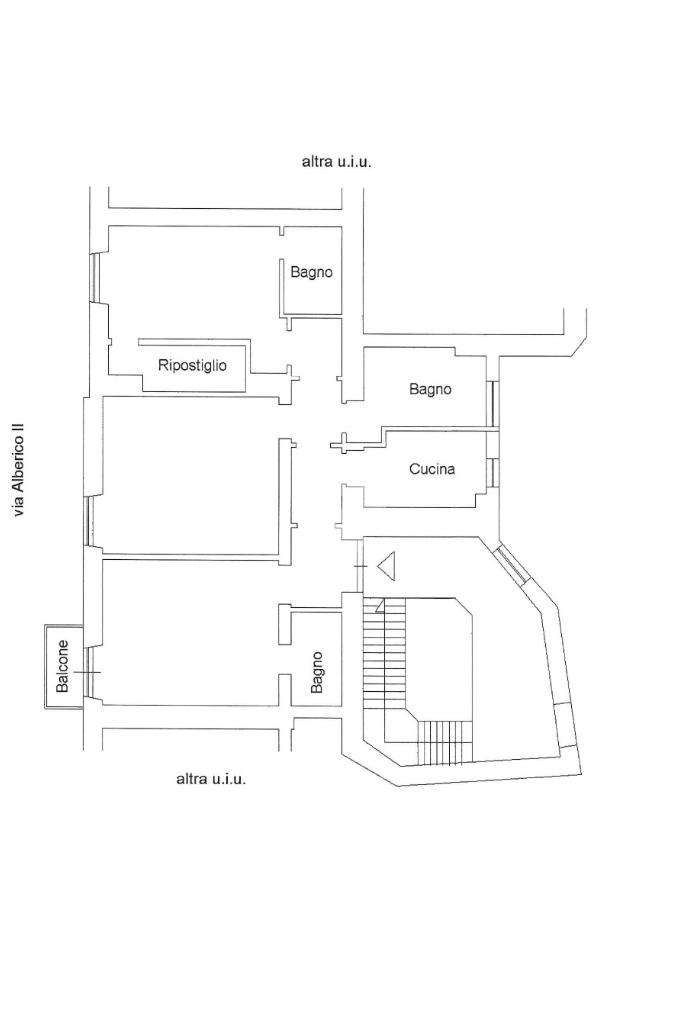
AD. CRESCENZIO - Nel cuore dell’elegante quartiere Prati, a pochi passi da Via Crescenzio, proponiamo in vendita un raffinato appartamento situato al terzo piano di uno stabile signorile e ben curato, una soluzione che coniuga eleganza, comfort e funzionalità. L’immobile, attualmente in ottimo stato, si distingue per la luminosità degli ambienti e per la doppia esposizione interna ed esterna che dona grande ariosità e una piacevole luce naturale durante la giornata. L’appartamento si apre su un ingresso accogliente, un ampio soggiorno, prosegue con due camere da letto ben distribuite, una cucina funzionale, tre servizi e un balcone con affaccio esterno. La zona notte è stata progettata per garantire il massimo della privacy e del comfort, una camera dispone infatti di cabina armadio e bagno en suite mentre la seconda camera è dotata anch’essa di bagno en suite e accesso diretto al balcone. Una disposizione degli spazi che rende la casa particolarmente pratica e piacevole da vivere. La posizione è strategica e perfettamente collegata ai principali servizi, attività commerciali e mezzi di trasporto del quartiere.
Questa proprietà rappresenta una soluzione ideale sia come abitazione di pregio sia come investimento sicuro e di valore.
Una casa di grande fascino nel cuore di uno dei quartieri più richiesti di Roma.

-Posizione esclusiva nel cuore di Prati.

- Appartamento in ottimo stato interno

-Investimento di valore




Classe G Ep175 Kwh/mq/a.

Prenota ora la tua visita al 3896368272

Mostra tutto

Nelle vicinanze

Trasporto pubblico Trasporto pubblico
Ottaviano
Ottaviano
660 m
Lepanto
Lepanto
770 m
Città del Vaticano
Città del Vaticano
1,1 Km
stazione di Roma San Pietro
stazione di Roma San Pietro
1,2 Km
Risorgimento/S. Pietro
Risorgimento/S. Pietro
430 m
Ricariche auto elettriche Ricariche auto elettriche
Garage Properzio | EnelX
270 m
Eneldrive Risorgimento
580 m
Eneldrive Cola di Rienzo
650 m
Parcheggio Mercato Trionfale - Musei Vaticani
980 m
Eneldrive Piazza Navona
1,1 Km
Scuole Scuole
LUMSA
120 m
Scuole
360 m
Istituto Comprensivo Dante Alighieri
380 m
Berlitz
580 m
Lumsa
660 m
Farmacia Farmacia
Farmacia
300 m
Farmacia
310 m
Parapharmacia
320 m
Farmacia Centrale
460 m
Farmacia Germanico
520 m
Ospedali Ospedali
Ospedale Santo Spirito in Sassia
440 m
Pronto Soccorso Ospedale "Santo Spirito in Sassia"
460 m
Casa di Cura Santa Famiglia
490 m
Ospedale Bambino Gesù
890 m
Pronto Soccorso Ospedale Oftalmico
1,2 Km
Supermercati Supermercati
Carrefour Express
90 m
in Coop
140 m
Pam Local
150 m
La Esse
350 m
Pam Express
360 m
Negozi Negozi
Ci mandino paramenti
250 m
Eredi Pisano
270 m
7 camicie
300 m
Nuvolari
300 m
Liu Jo
300 m
Bar Bar
Ted
150 m
Varsity Bisroot Bar
260 m
Cafe' dei Desideri
270 m
Caffè Tacito
420 m
Caffè Prati
430 m
Ristoranti Ristoranti
Mama Ristorante Bistrot
70 m
La Locanda di Eugenio e Fabio
100 m
Frascati
110 m
Les Étoiles
110 m
Trattoria La Pancia Felice
120 m
Mostra tutto

Caratteristiche

Rif.:
61196416
Piano:
3 di 6 con ascensore (Piano alto)
Balconi:
1
Camere da letto:
2
Arredamento:
Completo
Condizionamento:
Autonomo
Mostra tutto
Prezzo Prezzo
€ 710.000
Rata mutuo Rata mutuo
€ 3.373 / mese
Proponi il tuo prezzoProponi il tuo prezzo

Classe Energetica

G
G
G
G
G
G
G
G
G
Riscaldamento:
Autonomo
Tipo impianto:
Ad aria
Tipo alimentazione:
Altro

Ti interessa visionare l'immobile?

Fissa un appuntamento  Fissa un appuntamento

Richiedi informazioni

Clicca su Leggi per aprire l'informativa
* Questi campi sono obbligatori

Calcola il tuo mutuo

Semplice e senza impegno
Anticipo

( % )
Mutuo

( % )

pochi semplici passi

inserisci i tuoi dati
Questionario completato
Grazie per aver richiesto un appuntamento senza impegno con un nostro Consulente del Credito e Assicurativo.

Hai inserito correttamente tutti i dati necessari e a breve riceverai una e-mail con un link da convalidare per inviare i tuoi dati.
Affiliato
Studio Immobiliare Prati Srl
P.zza Del Risorgimento, 2 00192 Roma (RM)

Il nostro staff


  • Gisella Callipari
    Coordinatrice

  • Gabriella Donoso
    Affiliata

  • Giulia Abatemattei
    Collaboratrice

  • Edoardo Accogli
    Collaboratore

  • Sonia De Angelis
    Collaboratrice

  • Stefano Gloria
    Collaboratore

  • Ludovica Giannone
    Coordinatrice

  • Claudia Amodio
    Coordinatrice
P.zza Del Risorgimento, 2 00192 Roma (RM)
Zona: Prati- Milizie- Cola di Rienzo- Borgo Pio- Candia
Mostra su mappa
Orari: Dal lunedì al venerdì 09.00 - 20.00 Sabato 09.00 - 19.30
Affiliato
Studio Immobiliare Prati Srl
P.zza Del Risorgimento, 2 00192 Roma (RM)

2026 Tecnocasa Franchising S.p.A. - P. IVA 08365160152 - Via Monte Bianco 60/A 20089 Rozzano (MI). Ogni agenzia ha un proprio titolare ed è autonoma. Privacy policy | Policy utilizzo | Cookie policy